Woodlands Braddons Hill Road East
£430,000 Leasehold
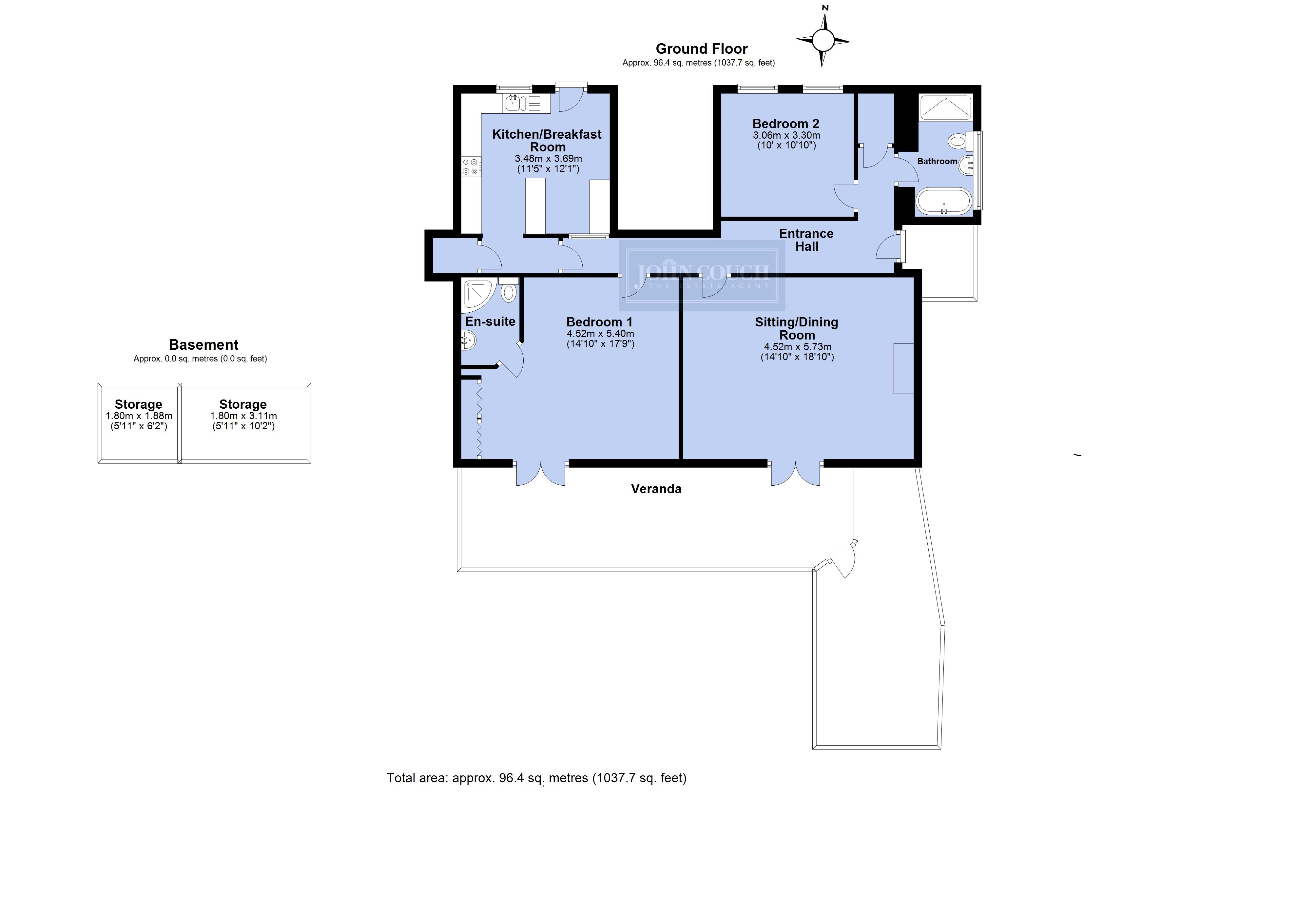
With its own private entrance, the apartment forms part of an unlisted Georgian-era villa, situated to the ground floor, with a private south facing terrace. The gracious accommodation is formed from some of the principal rooms of the original property, with high ceilings, original coving and window shutters enhanced with contemporary elements providing a stylish home for a relaxed lifestyle or second home living. The floor plan offers a kitchen/breakfast room, sitting/dining room, 2 bedrooms, en-suite shower room, further attributes include allocated cellar storage, two parking spaces and communal gardens.
Enquire about
this property
Add this Property to your favourites
Download Brochure
View Floorplan
Map & Nearby
Check Broadband Speed in the area
Broadband Speed: 152.0Mbps
x
How we calculate broadband speed
Broadband speed can vary depending on a number of factors.
The main one is the kind of connection and what it's physically made of. So Victorian copper wire is relatively slow
and new fibre optic runs literally at the speed of light.
How far away your property is from the telephone exchange or the box at the end of the street can also affect your
speed.
The other thing that'll affect your broadband performance is 'contention'. That just means how many people are on the
connection at the same time.
Our data provider collect speed test information from a number of sources as well as data about the type of
connection and distance from the exchange to calculate the speed for a postcode.
Superfast Broadband: 152Mbps
How do we know?
Share
Facebook